Home Homes for Sale Oxford, CT 213 Good Hill Road

213 Good Hill Road, Oxford, CT 06478

$149,900
213 Good Hill Road, Oxford, CT
1.55
Acres

About This Home

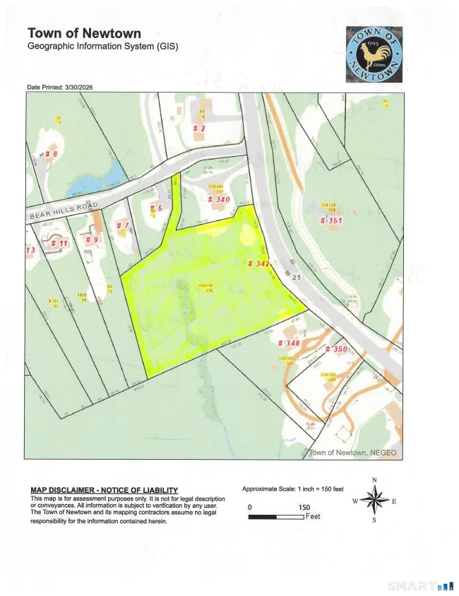
Discover the opportunity to build your dream home in Oxford's sought-after Quaker Farms area. This beautiful 1.55-acre level lot offers the ideal balance of privacy and convenience. Lightly wooded and set on a peaceful corner along a private drive, the property provides a quiet, low-traffic setting perfect for a custom-built home. With ample space to design your ideal layout, create outdoor living areas, and enjoy the natural surroundings, this parcel is a true blank canvas. Whether you envision a private retreat or an elegant new construction, the possibilities here are endless. Located just around the corner from Jackson Cove, you'll have easy access to one of the area's favorite spots for swimming, hiking, boating, and relaxing by the water.

Listed by Peter Onofrio (860) 759-9918 with LAER Realty Partners (203) 672-4499

Listing Snapshot

Price $149,900 Days on Our Site 0 days
Property Tax $1,486/yr Style
Year Built Total Sq Ft
Lot Size 1.55 acres HOA Fees N/A
Bedrooms Full Bathrooms
Total Rooms Half Baths

Systems & Utilities

Water Well Required
Sewer Septic Required

Schools

Elem Per Board of Ed
High Per Board of Ed

Mortgage Calculator

$
$
%
%
Est. Monthly Payment
Principal & Interest
Est. Property Tax $124/mo
Est. Home Insurance

Estimate only. Contact a lender for accurate figures.

Listing History

Date Event Price
Apr 24, 2026 Listed $149,900
Apr 24, 2026 Listing Off Market

Frequently Asked Questions

Is 213 Good Hill Road, Oxford, CT still available?
This property is no longer active on the MLS. Contact RYZE Realty Group for the latest availability.
What school district is 213 Good Hill Road, Oxford in?
This home is served by the Oxford public school system, with Per Board of Ed as the elementary school and Per Board of Ed as the high school.

Listing Agent

Peter Onofrio · (860) 759-9918

LAER Realty Partners · (203) 672-4499

MLS# 24169771 · Data provided by SmartMLS. Information deemed reliable but not guaranteed.
Listing updated Apr 24, 2026 5:15 PM UTC