Home Homes for Sale Stafford, CT 30 Edgewood Street

30 Edgewood Street, Stafford, CT 06076

Multi-Family For Sale · 2 Family

$340,000
$115/sqft
30 Edgewood Street, Stafford, CT
Under Contract
Photo 2
Photo 3
Photo 4
Photo 5
5
Bedrooms
2
Bathrooms
2,968
Sq Ft
0.39
Acres
1900
Year Built

About This Home

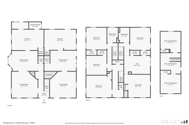
Highest & Best by 7pm Sunday (4/12) Welcome to this beautifully refreshed and wonderfully maintained side-by-side duplex. Offering classic New England charm with a sprawling, full-length covered front porch, this property is a fantastic opportunity for an owner-occupant looking to offset their mortgage or an investor seeking a move-in-ready addition to their portfolio. With distinct architectural details and extensive interior updates, both units are primed for immediate occupancy. Unit A is a spacious 1,550 sq. ft. featuring 3 bedrooms and 1 bath. Step inside to discover stunning floor-to-ceiling windows, charming decorative fireplaces, and incredible hardwood floors. The beautiful bay window in the dining room will be fidos favorite spot! The refreshed kitchen offers new flooring, while the entire unit boasts fresh paint and flawlessly repaired walls and ceilings. Unique to this unit are dual staircases, highly desirable first-floor laundry hookups, and walk-up attic access for abundant storage. Unit B offers 1,418 sq. ft. of flexible living space with 2 bedrooms, 1 full bath, and an extra upstairs room with a closet-perfect for a 3rd bedroom or office. This unit shines with freshly refinished hardwood floors, modern light fixtures, and a bright kitchen featuring white cabinetry and a convenient breakfast bar.

Listed by Tom Carroll (860) 392-9003 with William Pitt Sotheby's Int'l (860) 777-1800

Listing Snapshot

Price $340,000 Days on Our Site 13 days
Property Tax $5,730/yr Style Units are Side-by-Side
Year Built 1900 Total Sq Ft 2,968
Lot Size 0.39 acres HOA Fees N/A
Bedrooms 5 Full Bathrooms 2
Total Rooms 13 Half Baths 0

Key Features

Nearby
  • Golf Course
  • Health Club
  • Library
  • Medical Facilities
  • Park
  • Public Transportation
  • Shopping/Mall

Structure & Parking

Construction Frame
Roof Asphalt Shingle

Systems & Utilities

Heat Hot Water
Fuel Electric
Cooling None
Hot Water Oil, Electric, Upright Tank
Water Public Water Connected
Sewer Public Sewer Connected

Schools

Elem Per Board of Ed
High Stafford

Mortgage Calculator

$
$
%
%
Est. Monthly Payment
Principal & Interest
Est. Property Tax $478/mo
Est. Home Insurance

Estimate only. Contact a lender for accurate figures.

Listing History

Date Event Price
Apr 8, 2026 Listed $340,000

Frequently Asked Questions

How much does 30 Edgewood Street in Stafford, CT cost?
This property is listed at $340,000, which works out to $115 per square foot.
How many bedrooms does 30 Edgewood Street have?
This home has 5 bedrooms and 2 bathrooms.
What is the square footage of 30 Edgewood Street?
The home is 2,968 square feet, situated on 0.39 acres.
When was 30 Edgewood Street in Stafford built?
This property was built in 1900.
Is 30 Edgewood Street, Stafford, CT still available?
The current MLS status of this property is "Under Contract - Continue to Show". Contact RYZE Realty Group for the latest availability.
What school district is 30 Edgewood Street, Stafford in?
This home is served by the Stafford public school system, with Per Board of Ed as the elementary school and Stafford as the high school.
How do I schedule a tour of 30 Edgewood Street, Stafford, CT?
Contact RYZE Realty Group to schedule a private showing. You can submit a tour request directly on this page or call our office.

Listing Agent

Tom Carroll · (860) 392-9003

William Pitt Sotheby's Int'l · (860) 777-1800

MLS# 24165678 · Data provided by SmartMLS. Information deemed reliable but not guaranteed.
Listing updated Apr 15, 2026 11:56 AM UTC