745 Townsend Avenue Lot 5New Haven, CT 06512



Mortgage Calculator
Monthly Payment (Est.)
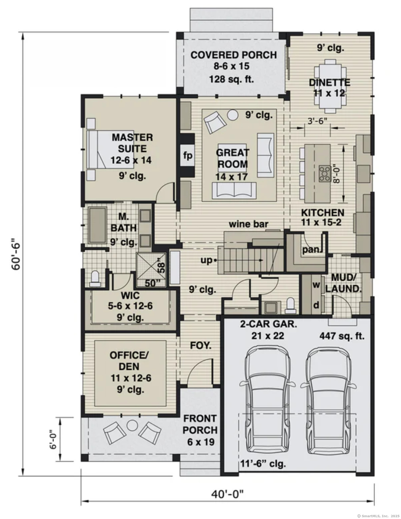
$5,292Build Your Dream Home at RESIDENCES at The Estate! A rare and exciting opportunity in New Haven's desirable East Shore neighborhood, offering custom single-family homes by the renowned Martone Building Group, known for exceptional craftsmanship and timeless design. Homes are built upon sale, allowing you to personalize every detail. Choose from six thoughtfully designed home plans ranging from 2,000-3,000 sq. ft. featuring 3-4 bedrooms, open-concept layouts, and elegant finishes. Premium curated features include white oak hardwood floors, Fabuwood cabinets, Viking appliances, Kohler fixtures, quartz or granite countertops, designer tile, Progress Lighting, Marvin windows, Everlast board & batten siding and natural stone. Enjoy a low-maintenance lifestyle just minutes from downtown New Haven, parks, and the shoreline. Limited availability. Private site visits and design consultations by appointment only. The *Sapphire* model is shown in this listing and can choose from any of the six available plans.
| a week ago | Listing updated with changes from the MLS® | |
| a week ago | Listing first seen on site |
The data relating to real estate for sale on this website appears in part through the SMARTMLS Internet Data Exchange program, a voluntary cooperative exchange of property listing data between licensed real estate brokerage firms, and is provided by SMARTMLS through a licensing agreement. Listing information is from various brokers who participate in the SMARTMLS IDX program and not all listings may be visible on the site. The property information being provided on or through the website is for the personal, non-commercial use of consumers and such information may not be used for any purpose other than to identify prospective properties consumers may be interested in purchasing. Some properties which appear for sale on the website may no longer be available because they are for instance, under contract, sold or are no longer being offered for sale. Property information displayed is deemed reliable but is not guaranteed. Copyright 2025 SmartMLS, Inc.
Last checked: 2025-11-09 04:53 PM UTC.
Did you know? You can invite friends and family to your search. They can join your search, rate and discuss listings with you.