Home Homes for Sale Clinton, CT 280 East Main Street #B5

280 East Main Street #B5, Clinton, CT 06413

Condo/Co-Op For Sale · Condominium

$249,900
$216/sqft
280 East Main Street #B5, Clinton, CT Active
Photo 2
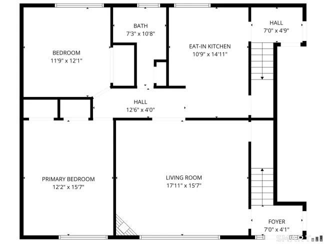
Photo 3
Photo 4
Photo 5
2
Bedrooms
1
Bathrooms
1,155
Sq Ft
1969
Year Built

About This Home

Breathe in the ocean air as you take in serene causeway views from the kitchen window of this tastefully remodeled ranch style condo. This spacious 2-bedroom, 1-bath home showcases modern touches throughout. Both the kitchen and bathroom were recently renovated, featuring new flooring, updated lighting, a tiled shower with built-in seat, a quartz topped vanity, and granite kitchen countertops paired with high quality, soft closing cabinetry. The elegant living room offers generous space, highlighted by gleaming hardwood floors, crown molding, and detailed wall trim. The full walkout basement is divided into sections, and this portion, shared by four units, offers interior stair access and includes a coin operated laundry area, individual water heaters, and secured storage spaces. This unit sits on the quieter back side of the complex, away from Route 1, offering added privacy and a pleasant view. Close to countless amenities and conveniences, yet best of all, perfectly situated along the beautiful shoreline. Enjoy easy access to the local town beach and Hammonasset, along with plenty of waterfront dining, outdoor activities, and coastal adventures. Conveniently located near major highways and the intown train station for effortless commuting. Don't miss your chance to tour this beautifully updated, one-of-a-kind condo before it's gone.

Listed by Antonella Vertucci (203) 641-8566 with William Pitt Sotheby's Int'l (203) 245-6700

Listing Snapshot

Price $249,900 Days on Market 0 days
Property Tax $2,404/yr Style Ranch
Year Built 1969 Total Sq Ft 1,155
Lot Size HOA Fees N/A
Bedrooms 2 Full Bathrooms 1
Total Rooms 4 Half Baths 0

Key Features

Interior
  • Cable - Available
Appliances
  • Electric Range
  • Microwave
  • Refrigerator
  • Dishwasher
Nearby
  • Health Club
  • Library
  • Public Transportation
  • Shopping/Mall

Structure & Parking

Construction Frame
Garage Type Parking Lot, Unassigned Parking, Assigned Parking

Systems & Utilities

Heat Baseboard
Fuel Electric
Cooling Window Unit
Hot Water Electric, 40 Gallon Tank
Water Public Water Connected
Sewer Shared Septic

Schools

Elem Lewin G. Joel
High Morgan

Mortgage Calculator

$
$
%
%
Est. Monthly Payment
Principal & Interest
Est. Property Tax $200/mo
Est. Home Insurance

Estimate only. Contact a lender for accurate figures.

Listing History

Date Event Price
Apr 3, 2026 Listed $249,900

Frequently Asked Questions

How much does 280 East Main Street #B5 in Clinton, CT cost?
This property is listed at $249,900, which works out to $216 per square foot.
How many bedrooms does 280 East Main Street #B5 have?
This home has 2 bedrooms and 1 bathroom.
What is the square footage of 280 East Main Street #B5?
The home is 1,155 square feet.
When was 280 East Main Street #B5 in Clinton built?
This property was built in 1969.
Is 280 East Main Street #B5, Clinton, CT still available?
The current MLS status of this property is "Active". Contact RYZE Realty Group for the latest availability.
What school district is 280 East Main Street #B5, Clinton in?
This home is served by the Clinton public school system, with Lewin G. Joel as the elementary school and Morgan as the high school.
How do I schedule a tour of 280 East Main Street #B5, Clinton, CT?
Contact RYZE Realty Group to schedule a private showing. You can submit a tour request directly on this page or call our office.

Listing Agent

Antonella Vertucci · (203) 641-8566

William Pitt Sotheby's Int'l · (203) 245-6700

MLS# 24163776 · Data provided by SmartMLS. Information deemed reliable but not guaranteed.
Listing updated Apr 3, 2026 9:12 AM UTC