Home Homes for Sale East Hampton, CT 00026 Edgewater Circle

00026 Edgewater Circle, East Hampton, CT 06424

Single Family For Sale

$719,000
$268/sqft
00026 Edgewater Circle, East Hampton, CT Active
Photo 2
Photo 3
3
Bedrooms
4
Bathrooms
2,683
Sq Ft
0.5
Acres
2023
Year Built

About This Home

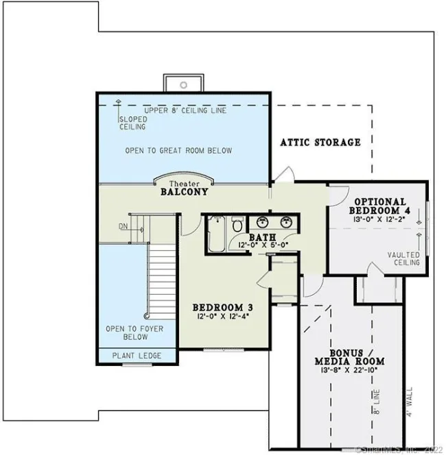
The welcoming Collins Estate has a porch entrance and an exterior with stone and vertical siding that is enhanced with craftsman details. This flexible floor plan offers a grand foyer open to the staircase to the 2nd level. The upper balcony overlooks the kitchen, dining area, and the great room with gas fireplace and 2 sets of French doors that leads to the rear covered porch. First floor primary bedroom is a lavish suite with a stunning bath. The upper level has 2 bedrooms, main bath, and the optional 22.10 x 13.8 bonus room. The Neighborhoods at Edgewater Hill is a unique community with generous allowances for cabinetry, appliances, and lighting. No two homes will be the same as plans are removed once selected. Make your reservation today! To be built similar to subject.

Listed by Joyce Covone (860) 608-1708 with Berkshire Hathaway NE Prop. (860) 267-4481

Listing Snapshot

Price $719,000 Days on Market 312 days
Property Tax Style Colonial
Year Built 2023 Total Sq Ft 2,683
Lot Size 0.5 acres HOA Fees N/A
Bedrooms 3 Full Bathrooms 4
Total Rooms 7 Half Baths 0

Key Features

Interior
  • Auto Garage Door Opener
  • Cable - Available
  • Cable - Pre-wired
Appliances
  • Allowance
Outdoor
  • Porch
  • Deck
Nearby
  • Lake
  • Library
  • Medical Facilities
  • Playground/Tot Lot
  • Public Rec Facilities
  • Tennis Courts

Structure & Parking

Construction Frame
Roof Asphalt Shingle
Garage Spaces 2
Garage Type Attached Garage

Systems & Utilities

Heat Hot Air
Fuel Natural Gas
Cooling Central Air
Hot Water Natural Gas
Water Private Well
Sewer Public Sewer Connected

Schools

Elem Per Board of Ed
Middle East Hampton
High East Hampton

Mortgage Calculator

$
$
%
%
Est. Monthly Payment
Principal & Interest
Est. Home Insurance

Estimate only. Contact a lender for accurate figures.

Listing History

Date Event Price
Apr 27, 2023 Under Contract
Jun 10, 2022 Listed $719,000

Frequently Asked Questions

How much does 00026 Edgewater Circle in East Hampton, CT cost?
This property is listed at $719,000, which works out to $268 per square foot.
How many bedrooms does 00026 Edgewater Circle have?
This home has 3 bedrooms and 4 bathrooms.
What is the square footage of 00026 Edgewater Circle?
The home is 2,683 square feet, situated on 0.5 acres.
When was 00026 Edgewater Circle in East Hampton built?
This property was built in 2023.
Is 00026 Edgewater Circle, East Hampton, CT still available?
The current MLS status of this property is "Active". Contact RYZE Realty Group for the latest availability.
What school district is 00026 Edgewater Circle, East Hampton in?
This home is served by the East Hampton public school system, with Per Board of Ed as the elementary school and East Hampton as the high school.
How do I schedule a tour of 00026 Edgewater Circle, East Hampton, CT?
Contact RYZE Realty Group to schedule a private showing. You can submit a tour request directly on this page or call our office.

Listing Agent

Joyce Covone · (860) 608-1708

Berkshire Hathaway NE Prop. · (860) 267-4481

MLS# 170498830 · Data provided by SmartMLS. Information deemed reliable but not guaranteed.
Listing updated Apr 1, 2026 3:03 AM UTC