Home Homes for Sale Bristol, CT 272 Old Orchard Road

272 Old Orchard Road, Bristol, CT 06010

Single Family For Sale

$688,600
$310/sqft
272 Old Orchard Road, Bristol, CT
Active
Photo 2
Photo 3
4
Bedrooms
3
Bathrooms
2,220
Sq Ft
0.57
Acres
2026
Year Built

About This Home

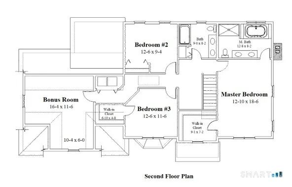
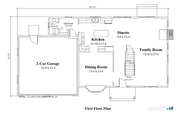
Still time to choose your finishes and make it your own-new construction on Old Orchard Road in Bristol, offering a rare opportunity to personalize key details while construction is underway. This 2,220 sq ft home is thoughtfully designed with a modern open-concept layout, ideal for both everyday living and entertaining. The main level features a bright, spacious living area that flows seamlessly into the kitchen and dining space, creating a natural gathering area at the heart of the home. The kitchen is planned as a central focal point, offering buyers the opportunity to select finishes and details that match their style, depending on the stage of construction. Upstairs, you'll find generously sized bedrooms, including a spacious primary suite with a private bath and ample closet space. The oversized fourth bedroom adds exceptional flexibility-perfect as a media room, home office, guest suite, or additional living space. Additional highlights include energy-efficient systems and quality craftsmanship throughout. Set on a peaceful street with convenient access to shopping, dining, and major commuter routes, this is a unique opportunity to secure new construction and shape it to your vision. Schedule your showing today.

Listed by George Santos (860) 558-8595 with William Raveis Real Estate (860) 677-4661

Listing Snapshot

Price $688,600 Days on Our Site 0 days
Property Tax $1,892/yr Style Colonial
Year Built 2026 Total Sq Ft 2,220
Lot Size 0.57 acres HOA Fees N/A
Bedrooms 4 Full Bathrooms 2
Total Rooms 7 Half Baths 1

Key Features

Appliances
  • Oven/Range
  • Microwave
  • Range Hood
  • Dishwasher
  • Disposal

Structure & Parking

Construction Frame
Roof Asphalt Shingle
Garage Spaces 2
Garage Type Attached Garage

Systems & Utilities

Heat Hot Air
Fuel Propane
Cooling Central Air
Hot Water Propane, Tankless Hotwater
Water Public Water Connected
Sewer Public Sewer Connected

Schools

Elem Per Board of Ed
High Per Board of Ed

Mortgage Calculator

$
$
%
%
Est. Monthly Payment
Principal & Interest
Est. Property Tax $158/mo
Est. Home Insurance

Estimate only. Contact a lender for accurate figures.

Listing History

Date Event Price
Apr 24, 2026 Listed $688,600

Frequently Asked Questions

How much does 272 Old Orchard Road in Bristol, CT cost?
This property is listed at $688,600, which works out to $310 per square foot.
How many bedrooms does 272 Old Orchard Road have?
This home has 4 bedrooms and 3 bathrooms.
What is the square footage of 272 Old Orchard Road?
The home is 2,220 square feet, situated on 0.57 acres.
When was 272 Old Orchard Road in Bristol built?
This property was built in 2026.
Is 272 Old Orchard Road, Bristol, CT still available?
The current MLS status of this property is "Active". Contact RYZE Realty Group for the latest availability.
What school district is 272 Old Orchard Road, Bristol in?
This home is served by the Bristol public school system, with Per Board of Ed as the elementary school and Per Board of Ed as the high school.
How do I schedule a tour of 272 Old Orchard Road, Bristol, CT?
Contact RYZE Realty Group to schedule a private showing. You can submit a tour request directly on this page or call our office.

Listing Agent

George Santos · (860) 558-8595

William Raveis Real Estate · (860) 677-4661

MLS# 24169920 · Data provided by SmartMLS. Information deemed reliable but not guaranteed.
Listing updated Apr 24, 2026 3:31 PM UTC