Home Homes for Sale Durham, CT Lot 2 Stonebridge Lane #Lot 2

Lot 2 Stonebridge Lane #Lot 2, Durham, CT 06422

Single Family For Sale

$879,000
$265/sqft
Lot 2 Stonebridge Lane #Lot 2, Durham, CT
Active
Photo 2
Photo 3
Photo 4
Photo 5
4
Bedrooms
3
Bathrooms
3,311
Sq Ft
2.47
Acres
2026
Year Built

About This Home

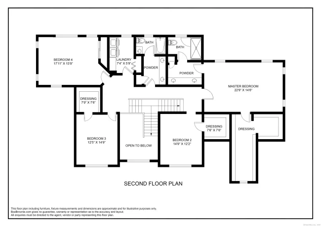
Welcome to 48 Stonebridge Drive! Construction is underway on this 3,311 sq ft Farmhouse Colonial that offers the perfect blend of classic charm with modern elements. The home's exterior impresses with its inviting front porch and sought after design features such as the black exterior windows and mix of vinyl styles. This home offers not only exceptional curb appeal but also everyday functionality. From the moment you enter, you're greeted by a split staircase - a striking architectural centerpiece that sets the tone for the home's spacious, open layout. The heart of the home is a gourmet kitchen that opens seamlessly to a cozy family room with a propane fireplace, while the formal dining room and home office offer additional flexibility. Upstairs, retreat to a luxurious primary suite with an ensuite bathroom and spacious walk-in closet. Three additional generously sized bedrooms and a convenient second-floor laundry room complete the upper level. Additional highlights include a three-car garage, full basement with finishing potential.

Listed by Dori Degennaro (860) 301-7794 with William Raveis Real Estate (860) 344-1658

Listing Snapshot

Price $879,000 Days on Our Site 56 days
Property Tax Style Colonial
Year Built 2026 Total Sq Ft 3,311
Lot Size 2.47 acres HOA Fees N/A
Bedrooms 4 Full Bathrooms 2
Total Rooms 8 Half Baths 1

Key Features

Appliances
  • Allowance

Structure & Parking

Construction Frame
Roof Asphalt Shingle
Garage Spaces 3
Garage Type Attached Garage

Systems & Utilities

Heat Hot Air
Fuel Propane
Cooling Central Air
Hot Water Propane, Tankless Hotwater
Water Private Well
Sewer Septic

Schools

Elem Per Board of Ed
High Coginchaug Regional

Mortgage Calculator

$
$
%
%
Est. Monthly Payment
Principal & Interest
Est. Home Insurance

Estimate only. Contact a lender for accurate figures.

Listing History

Date Event Price
Jan 29, 2026 Listed $879,000

Frequently Asked Questions

How much does Lot 2 Stonebridge Lane #Lot 2 in Durham, CT cost?
This property is listed at $879,000, which works out to $265 per square foot.
How many bedrooms does Lot 2 Stonebridge Lane #Lot 2 have?
This home has 4 bedrooms and 3 bathrooms.
What is the square footage of Lot 2 Stonebridge Lane #Lot 2?
The home is 3,311 square feet, situated on 2.47 acres.
When was Lot 2 Stonebridge Lane #Lot 2 in Durham built?
This property was built in 2026.
Is Lot 2 Stonebridge Lane #Lot 2, Durham, CT still available?
The current MLS status of this property is "Active". Contact RYZE Realty Group for the latest availability.
What school district is Lot 2 Stonebridge Lane #Lot 2, Durham in?
This home is served by the Durham public school system, with Per Board of Ed as the elementary school and Coginchaug Regional as the high school.
How do I schedule a tour of Lot 2 Stonebridge Lane #Lot 2, Durham, CT?
Contact RYZE Realty Group to schedule a private showing. You can submit a tour request directly on this page or call our office.

Listing Agent

Dori Degennaro · (860) 301-7794

William Raveis Real Estate · (860) 344-1658

MLS# 24150212 · Data provided by SmartMLS. Information deemed reliable but not guaranteed.
Listing updated May 5, 2026 12:12 PM UTC