Home Homes for Sale Guilford, CT Long Hill Road

Long Hill Road, Guilford, CT 06437

Single Family For Sale

$989,000
$351/sqft
Long Hill Road, Guilford, CT
Active
Photo 2
Photo 3
Photo 4
4
Bedrooms
3
Bathrooms
2,814
Sq Ft
1.63
Acres
2026
Year Built

About This Home

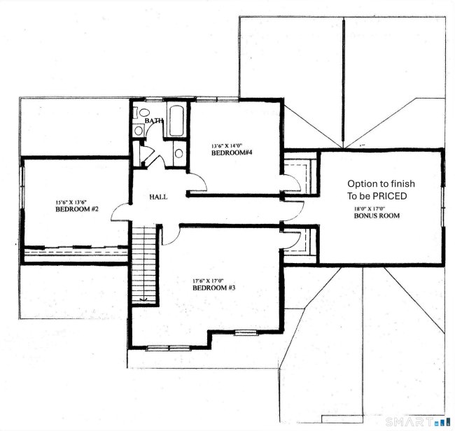
Here is your opportunity to build this beautifully designed 2,814 sq ft Cape-style home privately situated on a rear lot! This thoughtfully crafted To Be Built home blends classic New England charm with today's clean farmhouse aesthetic - board-and-batten accents, striking black windows, and timeless architectural lines. The open-concept main level is designed for today's lifestyle, featuring a spacious kitchen with center island and walk-in pantry, flowing seamlessly into the dining area and inviting family room. A first-floor primary suite option offers flexibility, complete with a walk-in closet and well-appointed bath. A private home office, mudroom, and separate laundry room complete the first floor. Upstairs, three generously sized bedrooms and a full bath create comfortable accommodations. Additionally, there is the option to expand over the garage or finish additional space in the walkout basement. The opportunity to personalize finishes make this a rare opportunity to build your dream home in a secluded yet convenient location.

Listed by Dori Degennaro (860) 301-7794 with William Raveis Real Estate (860) 344-1658

Listing Snapshot

Price $989,000 Days on Our Site 54 days
Property Tax Style Cape Cod
Year Built 2026 Total Sq Ft 2,814
Lot Size 1.63 acres HOA Fees N/A
Bedrooms 4 Full Bathrooms 2
Total Rooms 7 Half Baths 1

Key Features

Appliances
  • Allowance

Structure & Parking

Construction Frame
Roof Asphalt Shingle
Garage Spaces 2
Garage Type Attached Garage

Systems & Utilities

Heat Hot Air
Fuel Propane
Cooling Central Air
Hot Water Tankless Hotwater
Water Private Well
Sewer Septic

Schools

Elem Per Board of Ed
High Guilford

Mortgage Calculator

$
$
%
%
Est. Monthly Payment
Principal & Interest
Est. Home Insurance

Estimate only. Contact a lender for accurate figures.

Listing History

Date Event Price
Mar 3, 2026 Listed $989,000

Frequently Asked Questions

How much does Long Hill Road in Guilford, CT cost?
This property is listed at $989,000, which works out to $351 per square foot.
How many bedrooms does Long Hill Road have?
This home has 4 bedrooms and 3 bathrooms.
What is the square footage of Long Hill Road?
The home is 2,814 square feet, situated on 1.63 acres.
When was Long Hill Road in Guilford built?
This property was built in 2026.
Is Long Hill Road, Guilford, CT still available?
The current MLS status of this property is "Active". Contact RYZE Realty Group for the latest availability.
What school district is Long Hill Road, Guilford in?
This home is served by the Guilford public school system, with Per Board of Ed as the elementary school and Guilford as the high school.
How do I schedule a tour of Long Hill Road, Guilford, CT?
Contact RYZE Realty Group to schedule a private showing. You can submit a tour request directly on this page or call our office.

Listing Agent

Dori Degennaro · (860) 301-7794

William Raveis Real Estate · (860) 344-1658

MLS# 24156467 · Data provided by SmartMLS. Information deemed reliable but not guaranteed.
Listing updated Mar 3, 2026 6:46 PM UTC