Home Homes for Sale New Britain, CT 34 Pleasant Street

34 Pleasant Street, New Britain, CT 06051

Multi-Family For Sale · 2 Family

$449,900
$137/sqft
34 Pleasant Street, New Britain, CT
Photo 2
Photo 3
Photo 4
Photo 5
4
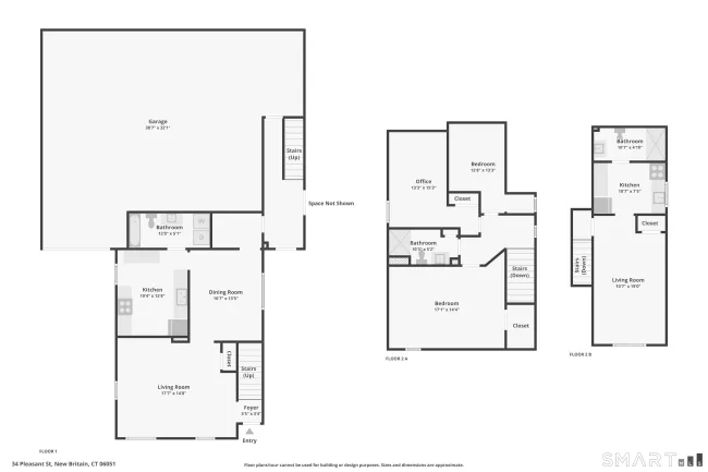
Bedrooms
3
Bathrooms
3,280
Sq Ft
0.12
Acres
1900
Year Built

About This Home

Rare investment or owner-occupant opportunity in New Britain! This unique property features a spacious single-family home across two floors plus a newly added, fully remodeled studio apartment featuring brand-new appliances. This setup offers incredible rental flexibility or the perfect layout for multi-generational living. A standout feature is the massive, ready for use 38'7" x 32'1" detached garage, providing over 1,200 square feet of space. This is a prime secondary cash-flow opportunity, perfect for renting out as a workshop, vehicle storage, or contractor space for significant additional monthly income. Ideally situated just minutes from I-84, Route 9, and local amenities, this property is designed for maximum return. With a fresh studio, move-in-ready main home, and a high-value unoccupied garage ready to rent, the cash flow potential here is unmatched. Don't miss out on this versatile New Britain gem!

Listed by Guillermo Araujo (860) 794-5353 with Five Stars Realty (860) 560-1500

Listing Snapshot

Price $449,900 Days on Market 1 days
Property Tax $6,618/yr Style Other
Year Built 1900 Total Sq Ft 3,280
Lot Size 0.12 acres HOA Fees N/A
Bedrooms 4 Full Bathrooms 3
Total Rooms 7 Half Baths 0

Structure & Parking

Construction Frame
Roof Asphalt Shingle
Garage Spaces 1
Garage Type Attached Garage, Driveway

Systems & Utilities

Heat Baseboard, Radiator
Fuel Natural Gas
Cooling Window Unit
Hot Water 40 Gallon Tank
Water Public Water Connected
Sewer Public Sewer Connected

Schools

Elem Per Board of Ed
High Per Board of Ed

Mortgage Calculator

$
$
%
%
Est. Monthly Payment
Principal & Interest
Est. Property Tax $552/mo
Est. Home Insurance

Estimate only. Contact a lender for accurate figures.

Listing History

Date Event Price
Apr 14, 2026 Listed $449,900

Frequently Asked Questions

How much does 34 Pleasant Street in New Britain, CT cost?
This property is listed at $449,900, which works out to $137 per square foot.
How many bedrooms does 34 Pleasant Street have?
This home has 4 bedrooms and 3 bathrooms.
What is the square footage of 34 Pleasant Street?
The home is 3,280 square feet, situated on 0.12 acres.
When was 34 Pleasant Street in New Britain built?
This property was built in 1900.
Is 34 Pleasant Street, New Britain, CT still available?
The current MLS status of this property is "Active". Contact RYZE Realty Group for the latest availability.
What school district is 34 Pleasant Street, New Britain in?
This home is served by the New Britain public school system, with Per Board of Ed as the elementary school and Per Board of Ed as the high school.
How do I schedule a tour of 34 Pleasant Street, New Britain, CT?
Contact RYZE Realty Group to schedule a private showing. You can submit a tour request directly on this page or call our office.

Listing Agent

Guillermo Araujo · (860) 794-5353

Five Stars Realty · (860) 560-1500

MLS# 24166985 · Data provided by SmartMLS. Information deemed reliable but not guaranteed.
Listing updated Apr 15, 2026 3:41 PM UTC