Home Homes for Sale Waterbury, CT Goff Street

Goff Street, Waterbury, CT 06704

Lots and Land For Sale · Residential Land

$379,900
Goff Street, Waterbury, CT
Active
Photo 2
Photo 3
Photo 4
Photo 5
32
Acres

About This Home

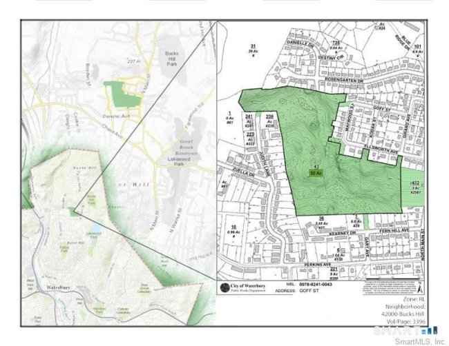
MOTIVATED SELLER - THIS IS A UNIQUE OPPORTUNITY FOR DEVELOPMENT 31.95 acres and 8 access points, sewer line has already been installed thru center of property, from Danielle Dr to Gary Ave, this is a substantial property with a lot of potential; it seems well-suited for various types of development. The zoning designation of RL (Residential Low-Density) typically supports single-family homes, but the additional permitted uses with special exceptions exhibit more flexibility. Here's a breakdown of what you might consider: 1. Residential Campus: A larger residential development, such as a planned community or retirement village could be a good fit. It allows for a variety of residential types beyond single-family homes. 2. Planned Residential Conservation: This option might be ideal to integrate the development with the natural surroundings, possibly preserving some open space while developing residential units. 3. General Purpose Hospital Campus: If there's a need for healthcare facilities in the area, this could be a potential use. 4. Colleges or Universities: This could be a significant project with a large impact on the community, potentially bringing in clients and staff to the area. 5. Special Permits: A pamphlet is attached detailing more options that could be explored. Maps are available for review, see listing agent for more details. The property is close to shopping, restaurants, highway, & public transportation

Listed by Lynn LaForme (203) 910-8618 with Regency Real Estate, LLC (860) 945-9868

Listing Snapshot

Price $379,900 Days on Our Site 54 days
Property Tax $10,633/yr Style
Year Built Total Sq Ft
Lot Size 32 acres HOA Fees N/A
Bedrooms Full Bathrooms
Total Rooms Half Baths

Systems & Utilities

Water Public Water In Street
Sewer Public Sewer In Street

Schools

Elem Per Board of Ed
High Per Board of Ed

Mortgage Calculator

$
$
%
%
Est. Monthly Payment
Principal & Interest
Est. Property Tax $886/mo
Est. Home Insurance

Estimate only. Contact a lender for accurate figures.

Listing History

Date Event Price
Mar 9, 2026 Listed $379,900

Frequently Asked Questions

How much does Goff Street in Waterbury, CT cost?
This property is listed at $379,900.
Is Goff Street, Waterbury, CT still available?
The current MLS status of this property is "Active". Contact RYZE Realty Group for the latest availability.
What school district is Goff Street, Waterbury in?
This home is served by the Waterbury public school system, with Per Board of Ed as the elementary school and Per Board of Ed as the high school.
How do I schedule a tour of Goff Street, Waterbury, CT?
Contact RYZE Realty Group to schedule a private showing. You can submit a tour request directly on this page or call our office.

Listing Agent

Lynn LaForme · (203) 910-8618

Regency Real Estate, LLC · (860) 945-9868

MLS# 24158679 · Data provided by SmartMLS. Information deemed reliable but not guaranteed.
Listing updated Apr 7, 2026 9:25 PM UTC