Home Homes for Sale Woodstock, CT 36 Olde Meadow Road

36 Olde Meadow Road, Woodstock, CT 06281

Single Family For Sale

$799,900
$276/sqft
36 Olde Meadow Road, Woodstock, CT
Active
Photo 2
Photo 3
Photo 4
Photo 5
4
Bedrooms
3
Bathrooms
2,900
Sq Ft
1.92
Acres
2026
Year Built

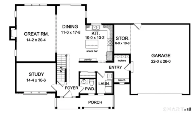
About This Home

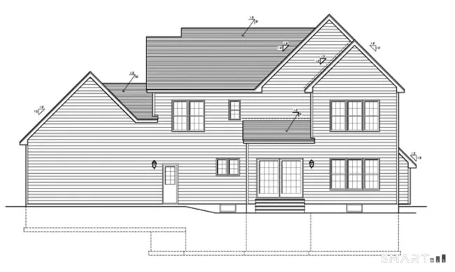
TO BE CONSTRUCTED | Starting at $799,900 Welcome to Eastwood Estates, where luxury living meets the natural beauty and tranquility of Woodstock. Set on a picturesque 1.92-acre homesite bordering protected open space and framed by classic New England stone walls, this offering provides a rare opportunity to build a custom home in one of the area's most desirable neighborhoods. Partner with an experienced local builder to create a home that reflects your lifestyle and vision. Choose from thoughtfully designed plans, including a stunning Country Colonial featuring 4 bedrooms and 2.5 baths, or explore alternative layouts, or bring your own ideas to life within the builder's program. Each home is crafted with attention to detail, blending timeless elegance with modern functionality; open living spaces, quality finishes, and design flexibility suited for today's living. Eastwood Estates is governed by covenants that preserve the integrity and value of the neighborhood, including a minimum home size of 2,900 square feet (which may include finished lower-level space). Enjoy the peaceful charm of Woodstock with nearby access to local farms, walking trails, and scenic roads, while still being within reach of everyday conveniences and commuting routes. A unique opportunity to build a home that is both refined and personal, guided every step of the way.

Listed by Tina Lajoie (860) 450-2620 with Signature Properties of N.E. (860) 447-8839

Listing Snapshot

Price $799,900 Days on Our Site 13 days
Property Tax $1,135/yr Style Colonial
Year Built 2026 Total Sq Ft 2,900
Lot Size 1.92 acres HOA Fees $150/qtr
Bedrooms 4 Full Bathrooms 2
Total Rooms 8 Half Baths 1

Key Features

Interior
  • Auto Garage Door Opener
Appliances
  • Allowance
Outdoor
  • Deck
  • Gutters
  • Lighting
  • Covered Deck
  • French Doors
  • Patio
Nearby
  • Golf Course
  • Lake
  • Park
  • Playground/Tot Lot
  • Stables/Riding

Structure & Parking

Construction Frame
Roof Asphalt Shingle
Garage Spaces 2
Garage Type Attached Garage
Below Grade 400 sq ft

Systems & Utilities

Heat Hot Air, Zoned
Fuel Oil
Cooling Central Air
Hot Water Propane, Tankless Hotwater
Water Private Well
Sewer Septic Required

Schools

Elem Woodstock
Middle Woodstock
High Woodstock Academy

Mortgage Calculator

$
$
%
%
Est. Monthly Payment
Principal & Interest
Est. Property Tax $95/mo
Est. Home Insurance

Estimate only. Contact a lender for accurate figures.

Listing History

Date Event Price
Apr 8, 2026 Listed $799,900

Frequently Asked Questions

How much does 36 Olde Meadow Road in Woodstock, CT cost?
This property is listed at $799,900, which works out to $276 per square foot.
How many bedrooms does 36 Olde Meadow Road have?
This home has 4 bedrooms and 3 bathrooms.
What is the square footage of 36 Olde Meadow Road?
The home is 2,900 square feet, situated on 1.92 acres.
When was 36 Olde Meadow Road in Woodstock built?
This property was built in 2026.
Is 36 Olde Meadow Road, Woodstock, CT still available?
The current MLS status of this property is "Active". Contact RYZE Realty Group for the latest availability.
What school district is 36 Olde Meadow Road, Woodstock in?
This home is served by the Woodstock public school system, with Woodstock as the elementary school and Woodstock Academy as the high school.
How do I schedule a tour of 36 Olde Meadow Road, Woodstock, CT?
Contact RYZE Realty Group to schedule a private showing. You can submit a tour request directly on this page or call our office.

Listing Agent

Tina Lajoie · (860) 450-2620

Signature Properties of N.E. · (860) 447-8839

MLS# 24165439 · Data provided by SmartMLS. Information deemed reliable but not guaranteed.
Listing updated Apr 18, 2026 10:36 PM UTC